一戸建て 鹿児島市 稲荷町(仙厳園駅) 4LDK 2,980万円
物件情報
| 交通 | JR日豊本線 / 仙巌園駅 徒歩13分 [バス利用可] バス 稲荷町 停歩8分 |
|---|---|
| 所在地 | 鹿児島県鹿児島市稲荷町 |
| 物件種目 | 中古一戸建て |
| 価格 | 2,980万円 | ||
|---|---|---|---|
| 借地期間・地代(月額) | - | 権利金 | - |
| 敷金・保証金 | - / - | 維持費等 | - |
| その他一時金 | - | ||
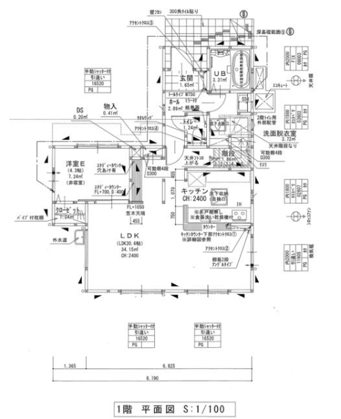
| バス・トイレ | 浴室暖房、浴室乾燥機、オートバス、追焚機能、シャワー付洗面化粧台、温水洗浄便座、トイレ2ヶ所、浴室に窓あり |
|---|---|
| キッチン | カウンターキッチン、食器洗浄乾燥機、浄水器、IHクッキングヒーター、3口以上コンロ |
| 設備・サービス | 全居室収納、エアコン2台以上、モニター付インターホン、ディンプルキー、シャッター雨戸、出窓、全居室フローリング、上水道、下水道、エアコン、庭、照明器具、火災警報器(報知機)、BS端子、複層ガラス |
| その他 | - |
| 瑕疵保証 | - |
|---|---|
| 瑕疵保険 | 瑕疵保険検査基準に適合 |
| 評価・証明書 | - |
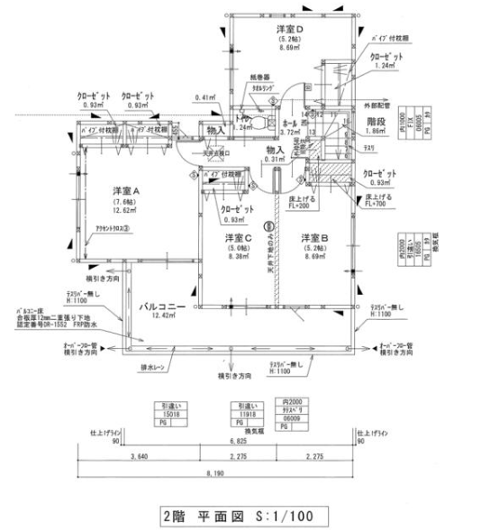
| 備考 | バルコニー:12m² 主要採光面:南東向き 施工会社:ケイアイスタービルド株式会社 |
| 建物名 | |||
|---|---|---|---|
| 間取り | 4LDK(洋 10.2・7.6・5.2・4.3 LDK 20.6) | 建物面積 | 108.88m² |
| 土地面積 | 178.65m²(実測) | 私道負担面積 | なし |
| 築年月 | 2023年3月 | 階建 / 階 | 2階建 |
| 駐車場 | 有 無料 | 建物構造 | 木造 |
| 土地権利 | 所有権 | 都市計画 | 市街化区域 |
| 用途地域 | 2種中高 | 接道状況 | - |
| 建ぺい率 | 60% | 容積率 | 200% |
| 地目 | 宅地 | 地勢 | 平坦 |
| 国土法届出 | - | セットバック | - |
| 建築確認番号 | - | ||
| エネルギー消費性能 | - | 断熱性能 | - |
|---|---|---|---|
| 目安光熱費 | - | ||
| 現況 | 空家 | 引渡可能時期 | 相談 |
|---|---|---|---|
| 取引態様 | 専任媒介 | 物件番号 | – |


